眀徳山

King’s Hill
眀徳山 最新楼价走势 (最近90日, 逢星期六更新)
平均成交尺价
$21,722 元 -9.42%
成交量
2宗
有盈利比例
0%
蚀让比例
0%
一年转手率(二手)
6%
一年前尺价
$22,661 元
放盘叫价
$850 万元 - $1,300 万元 6个 放盘
@24,523 - @27,722
 * 有关屋苑平均成交尺价是使用最近的成交资料 (90日), 作平均计算
眀徳山 最新租赁市场 (最近成交日期 2023-09-20, 之前90日内资料)
平均成交尺租
--
成交量
--
租务回报率
--
租务活跃率
--
租盘叫价
$21,800 元 - $38,000 元 9个 租盘
@69 - @76

眀徳山 楼价走势

眀徳山 成交纪录

物业地址 面积 成交价钱 盈利/蚀让
2026-02-06
注册处成交
实389尺
$855 万元
@ $21,979
-
2026-01-15
注册处成交
实389尺
$835 万元
@ $21,465
-
2025-12-05
注册处成交
实360尺
$838 万元
@ $23,278
-
2025-10-20
注册处成交
实337尺
$831.8 万元
@ $24,682
-
2025-09-05
注册处成交
实367尺
$670 万元
@ $18,256
-
2025-08-04
注册处成交
实367尺
$635 万元
@ $17,302
-
2025-08-01
注册处成交
实314尺
$630 万元
@ $20,064
-
2025-07-14
注册处成交
实389尺
$723 万元
@ $18,586
- -
2025-06-24
注册处成交
实360尺
$700 万元
@ $19,444
-
2025-06-02
注册处成交
实529尺
$1,300 万元
@ $24,575
-
载入中。。。

眀徳山 楼盘

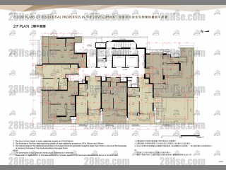
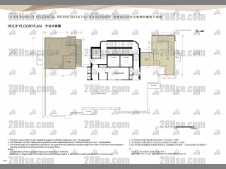
眀徳山 平面图

收藏屋苑

屋苑资料

眀徳山由新鸿基发展,提供166个单位,实用面积由314至889平方尺,采1房至3间隔设计,另有部分单位设有平台及天台。
物业座数:
1
入伙年份:
2017 年
发展商:
新鸿基
管理公司:
帝誉服务有限公司
单位数目:
182伙
小学校网:
中学校网:

眀徳山 地产代理公司

西营盘皇后大道西353号4号铺
售盘 3
租盘 23
香港皇后大道中73-83号万兴商业大厦14楼
售盘 53
西半山般咸道29-31号新联大厦E地铺
售盘 4

地图

眀徳山 地图
宁养台, 般咸道( 巴士站 )
1分钟 步行
宁养台( 巴士站 )
1分钟 步行
李升小学, 薄扶林道( 巴士站 )
2分钟 步行

相关屋苑比较
显示全部

  眀徳山 缙城峰
楼龄 10 年 17 年
单位数目 182 492
平均尺价 $21,722 元 $24,649 元
变动幅度 -9.42% +5.77%
成交量 2宗 12宗
有盈利比例 0% 92%
蚀让比例 0% 8%
一年转手率 6% 5.7%
放盘叫价 $850 万元 - $1,300 万元 $830 万元 - $2,350 万元
平均尺租 -- $62.0 元
租务回报率 -- ~ 3%
租务活跃率 -- 7.1%